新闻动态

首页 > 新闻动态 > 全球地产精选

瑞士安德玛特Eisvogel智能公寓

2018-06-15

1.jpg

2.jpg


欢迎来到Eisvogel 智能公寓,这里是您在瑞士阿尔卑斯山核心区的天堂,为年轻、热爱运动的您提供实用的奢华体验。

3.jpg

01

简介

Eisvogel 智能公寓是SWISS PROPERTY AG与安德玛特Swiss Alps AG合作建造的第二座公寓楼。Eisvogel 智能公寓以其独特的设计理念、极具吸引力的性价比以及专门为未来业主量身定制的设计特色脱颖而出。

1.gif

安德玛特常年有稳定积雪。因此,在瑞士中部最大的滑雪区——SkiArena 安德玛特-Sedrun可以进行各种冬季体育活动。

2.gif

在夏季的几个月里,您也可以进行各种各样的休闲活动和体育运动,比如您可以在安德玛特的18洞72杆锦标赛高尔夫球场上打高尔夫球。

3.jpg


02

智能公寓设计


 为了让Eisvogel公寓更加具有吸引力和人性化,我们有意把设计重点放在创建智能化和自动化的私人空间上,并配以供所有住户使用的宽敞公共区域,包括:与朋友共进晚餐的理想地点——宽敞的厨房和休闲区,带有115平方米的健身房的水疗中心,以及适合滑雪后聚会的室内酒吧。

1.jpg

( 示意图:纯净冬季公寓 )

2.jpg

( 示意图:纯净夏季公寓 )

3.jpg

 ( 示意图:阿尔卑斯冬季卫生间 ) 

4.jpg

( 示意图:阿尔卑斯夏季卫生间 )


03

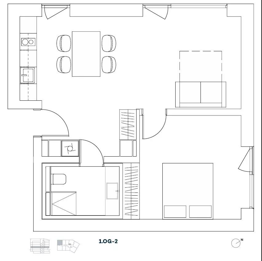
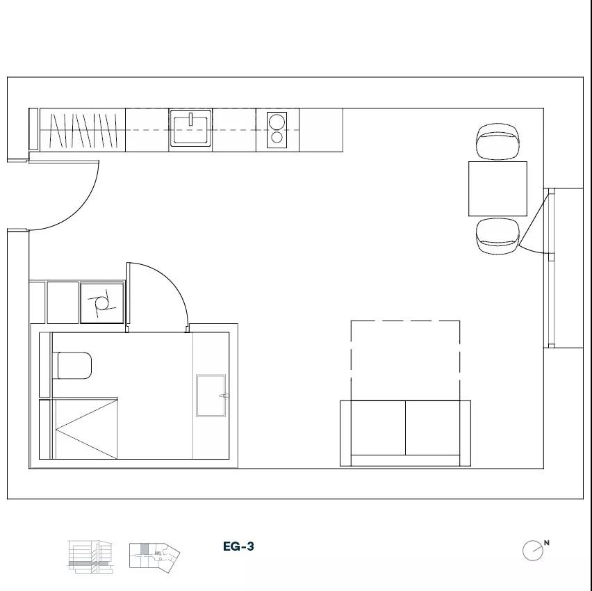
平面图示例


公寓面积从30到84平方米不等


1.5 房平面图示例 ,可售面积35.3平方米


1.jpg2.5 房平面图示例 ,可售面积55.6平方米

2.jpg



3.5复式平面图示例 - 可售面积91.9平方米

3.jpg



04

建筑


该公寓旨在满足体育爱好者的需求,但最重要的是成为友好型社区。实用的公寓经过精心设计,宽敞的公共领域更加令人印象深刻。


公共区域设计美观、质量上乘,为人们在体育活动后进行社交聚会和娱乐活动提供了舒适宽敞的空间。

1.jpg

(示意图:桑拿与保健区)


2.jpg

(示意图:休闲区)

05

投资理念


由于缺乏小型住宅,Eivogel 智能公寓对于那些花大量时间享受体育运动和休闲活动并希望节省酒店费用的人极具吸引力。

 

这些配有智能设施、空间优化的公寓,每平方米起价为9,900瑞士法郎,比类似项目便宜15%。由于公寓面积较小,从30平方米到84平方米不等,起价只有29万瑞士法郎。在安德玛特,类似项目并不多见。

 

该项目的另一个优势就是提供了专门设计的租赁方式,其目的是在业主自己不使用公寓时为业主创造收入。Eisvogel 公寓计划以每月850瑞士法郎起租,这样既能让租户觉得合算,又能为公寓业主带来诱人的回报。

1.jpg


声明:本文内容为维越国际有限公司根据开发商一手资料原创编辑,未经允许或授权的个人或公司都禁止转载。本文内容中的的所有的项目内容描述都给予开发商规划而提出,图片包含设计师渲染的效果概念图,方便客户参考,不应依赖它们形成对最终项目实际细节的明示或暗示,如有规划的变更,恕不另行通知。房屋的实际情况都以开发商合约为准。房源和价格因市场情况时时变动,如有变更,恕不另行通知。

x

邮箱:

hello@wnbicorp.com

留言咨询:

Copyright @ 维越国际有限公司 版权所有

Back to top